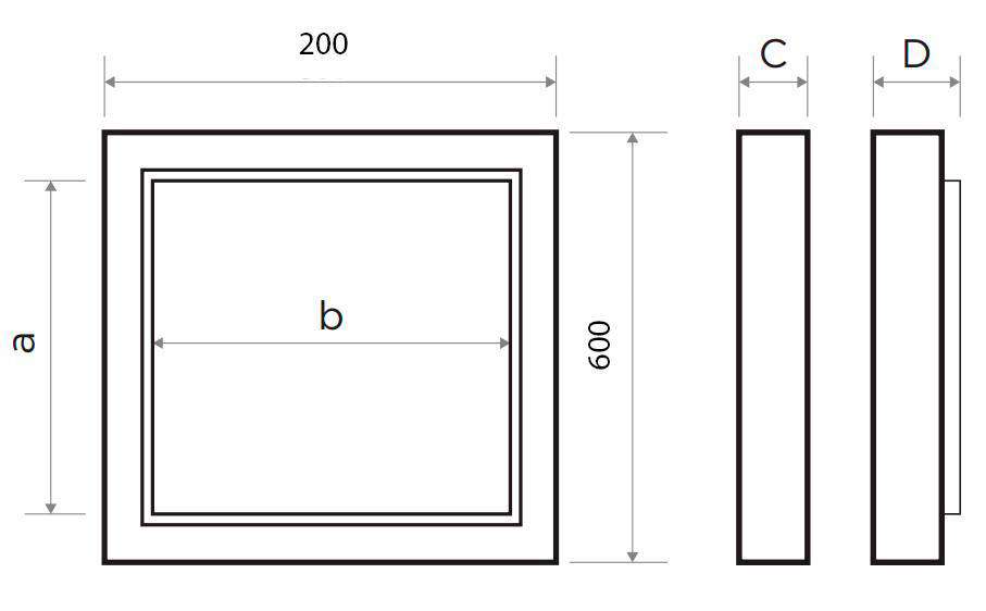
Люк сантехнический ревизионный AL-KR 60(в)*20(ш) см, открывание нажатием, ключ для регулировки в комплекте


Назначение
Размер
Цвет
Дизайн
Назначение
Размер
Цвет
Дизайн
Форма
Развернуть СвернутьТип поверхности
Фиттинги
Назначение
Обработка
Материал
Назначение